GONZALEZ, JOAQUIN V. al 1900
Casa en Venta · VILLA DEL PARQUE / C.A.B.A.
U$S 370.000.-
































































59 fotos
5 ambientes
4 dormitorios
4 baños
354 m² totales
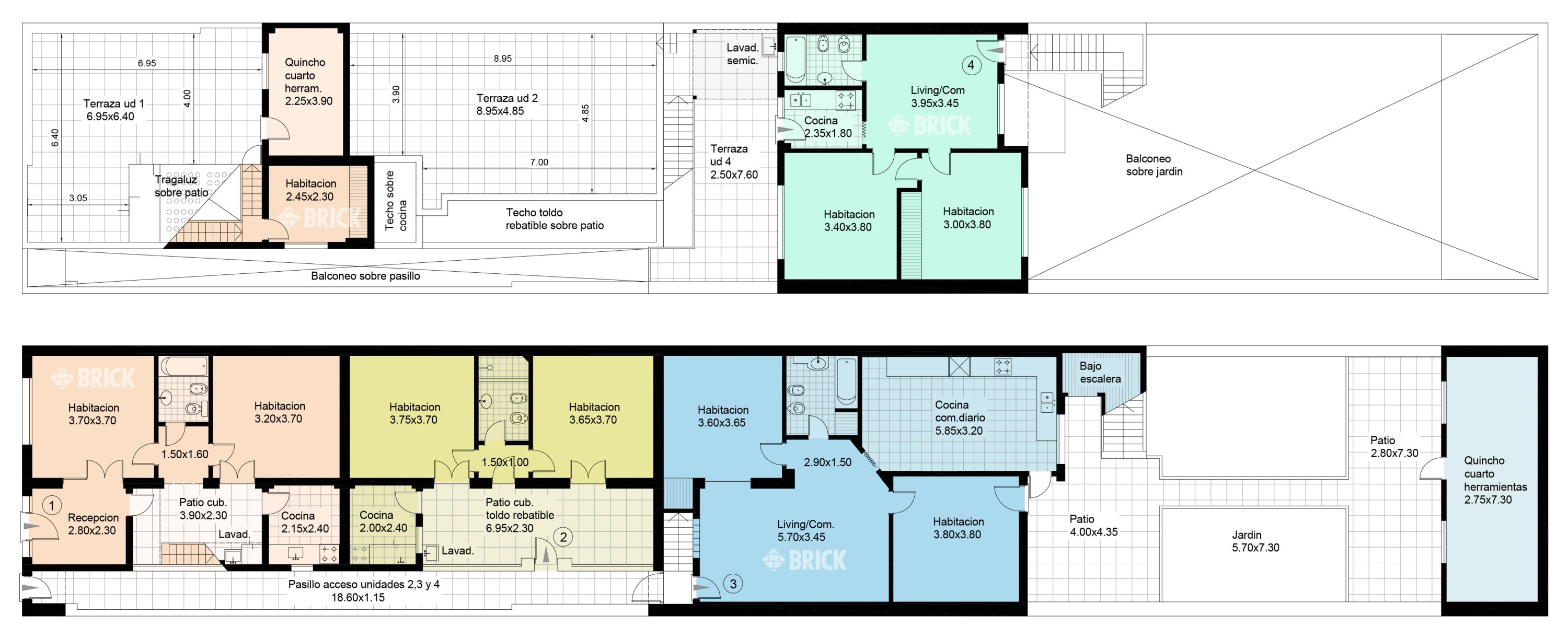
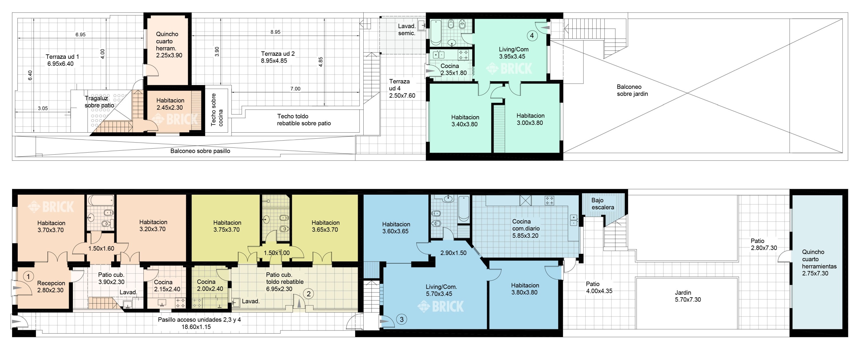
(VENTA EN BLOCK) 4 PH EN LOTE PROPIO DE DE 7.79X45.77 METROS. 357 M2 DE SUPERFICIE. SERVICIOS INDIVIDUALES. PISOS DE PINOTEA. CARPINTERIAS DE CEDRO.
- UNIDAD 1: PH 3 AMBIENTES EN 2 PLANTAS, AL FRENTE Y CON ENTRADA INDEPENDIENTE. TERRAZA CON QUINCHO CUBIERTO O CUARTO DE HERRAMIENTAS + PATIO. BAÑO Y COCINA COMPLETOS.
- UNIDAD 2: PH 3 AMBIENTES. LATERAL. TODO TERRAZA. BAÑO Y COCINA COMPLETOS. LAVADERO INDEPENDIENTE.
- UNIDAD 3: PH 3 AMBIENTES. CONTRAFRENTE. GRAN PATIO Y JARDIN CON QUINCHO CUBIERTO. COCINA COMEDOR.
- UNIDAD 4: PH 3 AMBIENTES. CONTRAFRENTE EN 1° PISO POR ESCALERA. TERRAZA. BAÑO Y COCINA COMPLETOS. PLACARD. LAVADERO INDEPENDIENTE CUBIERTO.
ENTRE MIRANDA Y ELPIDIO GONZALEZ
(A 1 CUADRA DE AV. ALVAREZ JONTE - A 3 DE PLAZA MONTE CASTRO)
VILLA DEL PARQUE
APTO DISCAPACITADOS: No.
NO SE INCLUYEN EN EL PRECIO DE ESTA VENTA: Mobiliarios no empotrados, aires acondicionados, estufas ni artefactos de iluminación.
AVISO LEGAL: Las descripciones arquitectónicas y funcionales, valores de expensas, impuestos y servicios, fotos y medidas de este inmueble son aproximados. Los datos fueron proporcionados por el propietario a cada licenciatario de la marca BRICK Propiedades & Servicios y BRICK (cuyos datos se exhiben al pie de los datos de contacto de cada Local u Oficina). Dichos datos pueden no estar actualizados a la hora de la visualización de este aviso por lo cual pueden arrojar inexactitudes y discordancias con las que surgen de los las facturas, títulos y planos legales del inmueble. El interesado deberá realizar las verificaciones respectivas previamente a la realización de cualquier operación, requiriendo por sí o los profesionales de su confianza (arquitectos, ingenieros, agrimensores, escribanos, abogados, contadores, etc.) las copias necesarias de la documentación que corresponda.
Planos
Ubicación
GONZALEZ, JOAQUIN V. al 1900 · VILLA DEL PARQUE / C.A.B.A.

























































