BOUCHARD, HIPOLITO al 3200
Galpón, Depósito en Venta · LANUS ESTE / LANUS
U$S 160.000.-















































42 fotos
1 baños
424 m² totales
566 m² cubiertos
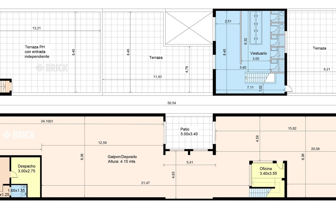
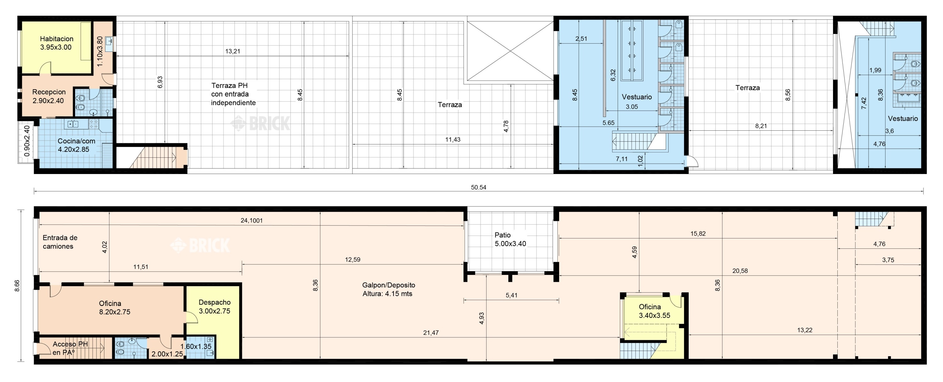
ESPECTACULAR GALPON + OFICINA 2 AMBIENTES + PH MONOAMBIENTE CON ENTRADA INDEPENDIENTE EN PLANTA ALTA EN LOTE PROPIO DE 8.66X49 METROS. 424 M2 DE SUPERFICIE. 566 M2 CUBIERTOS TOTALES.
- PB: ESPECTACULAR GALPON + OFICINA 2 AMBIENTES CON ENTRADA INDEPENDIENTE. BAÑO Y OFFICE. ENTRADA DE VEHICULOS. DOBLE ALTURA. TODO LOSA. 2 VESTUARIOS.
- PA: PH MONOAMBIENTE CON ENTRADA INDEPENDIENTE. FRENTE. GRAN TERRAZA + BALCON. TODO SOL. BAÑO Y COCINA. LAVADERO.
ENTRE GENERAL PICO Y POSADAS
(PARQUE INDUSTRIAL - A 2 CUADRAS DEL CENTENARIO URUGUAYO - A 3 DE AV. PRESIDENTE RAUL ALFONSIN - A 4 DEL CAMINO GENERAL BELGRANO)
LANUS ESTE
AVISO LEGAL: Las descripciones arquitectónicas y funcionales, valores de expensas, impuestos y servicios, fotos y medidas de este inmueble son aproximados. Los datos fueron proporcionados por el propietario a cada licenciatario de la marca BRICK Propiedades & Servicios y BRICK (cuyos datos se exhiben al pie de los datos de contacto de cada Local u Oficina). Dichos datos pueden no estar actualizados a la hora de la visualización de este aviso por lo cual pueden arrojar inexactitudes y discordancias con las que surgen de los las facturas, títulos y planos legales del inmueble. El interesado deberá realizar las verificaciones respectivas previamente a la realización de cualquier operación, requiriendo por sí o los profesionales de su confianza (arquitectos, ingenieros, agrimensores, escribanos, abogados, contadores, etc.) las copias necesarias de la documentación que corresponda.
Planos
Ubicación
BOUCHARD, HIPOLITO al 3200 · LANUS ESTE / LANUS








































