PICHINCHA al 1400
Casa en Venta · SAN CRISTOBAL / C.A.B.A.
U$S 240.000.-

































































60 fotos
7 ambientes
6 dormitorios
6 baños
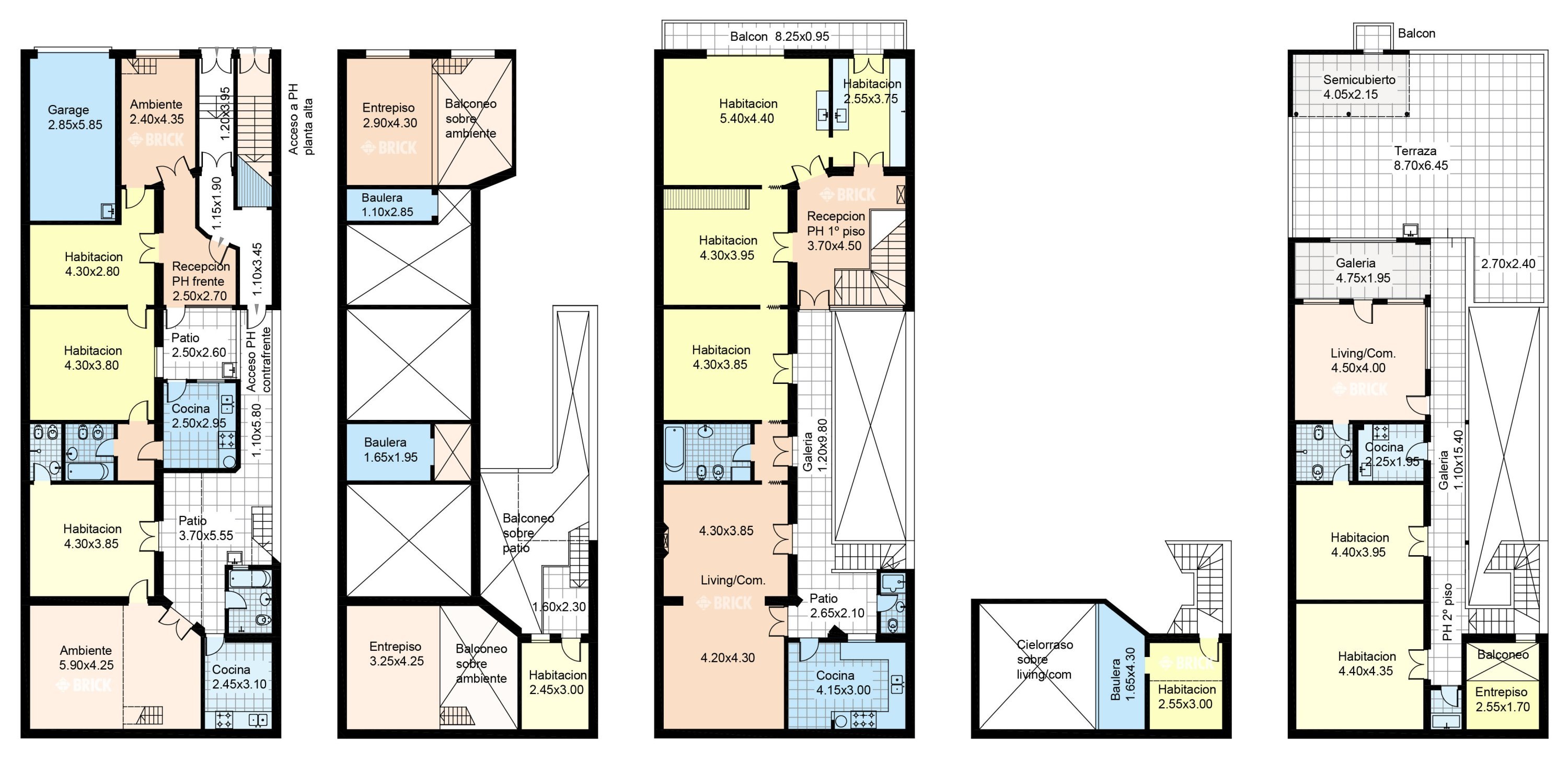
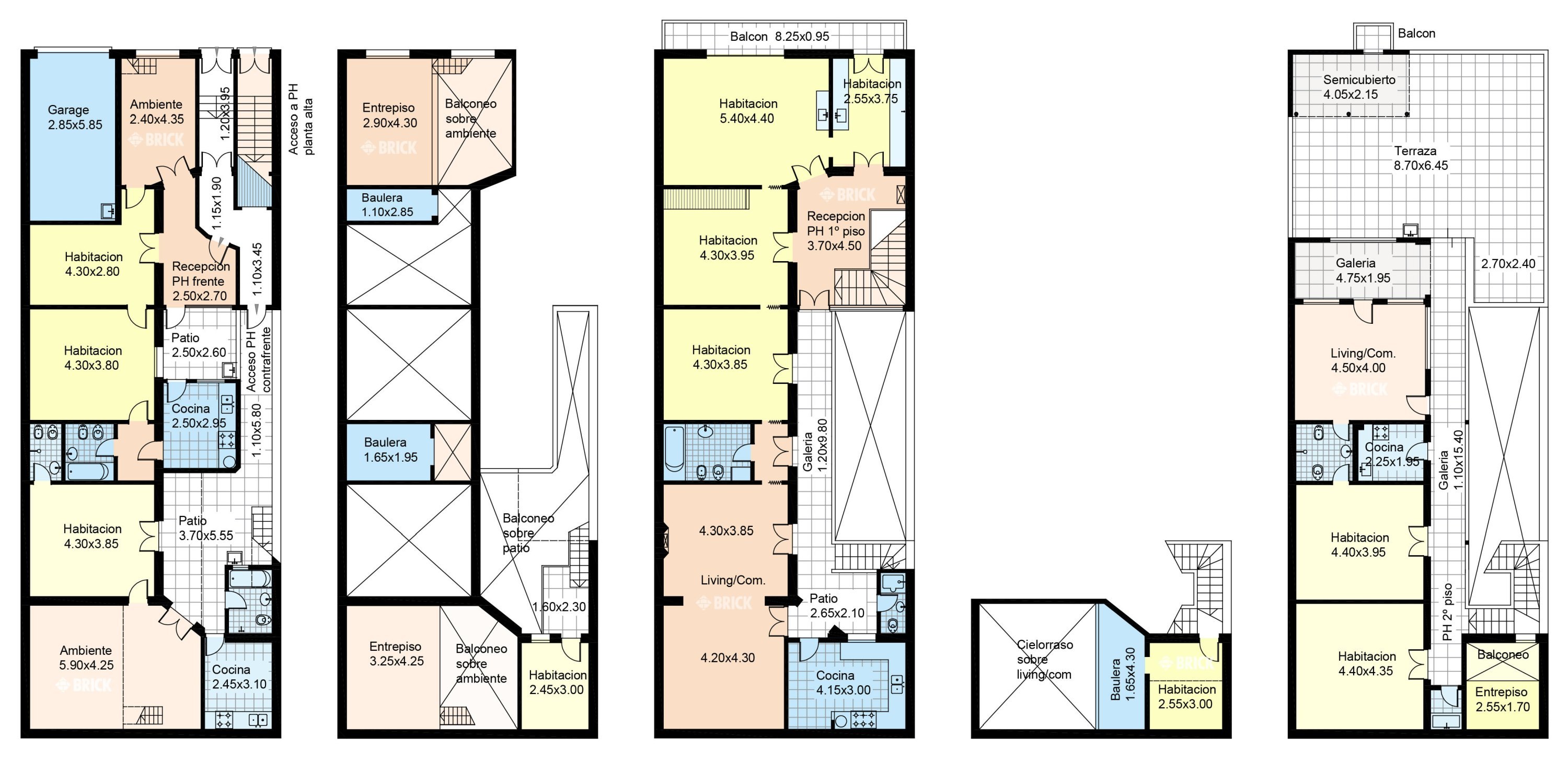
209 m² totales
488 m² cubiertos
(IDEAL INVERSION PARA RENTA) VENTA EN BLOCK EN LOTE PROPIO DE 8.75X23.89 METROS. 209 M2 DE SUPERFICIE. 488 M2 CUBIERTOS. GARAGE. 3 MEDIDORES INDIVIDUALES.
- PB: PH 3 AMBIENTES + ENTREPISO AL FRENTE. PATIO. BAÑO Y COCINA COMPLETOS.
PH 3 AMBIENTES + ENTREPISO AL CONTRAFRENTE. PATIO. SUITE + BAÑO COMPLETO. COCINA COMPLETA.
- 1° PISO: PH 5 AMBIENTES AL FRENTE Y CON ENTRADA INDEPENDIENTE. BALCON CORRIDO. TODO SOL. BAÑO COMPLETO + TOILETTE CON DUCHA. COCINA COMEDOR.
- 2° PISO: PH 3 AMBIENTES. TERRAZA CON POSIBILIDAD DE QUINCHO. TODO TECHO DE LOSA. BAÑO Y COCINA COMPLETOS. LAVADERO INDEPENDIENTE.
UNIDAD DE SUSTENTABILIDAD DE ALTURA BAJA 2 (14.6 METROS). A CONSTRUIR 700 M2 NETOS VENDIBLES.
ABL: $ 90.000.-
AYSA: $ 70.000.-
ENTRE CONSTITUCION Y PAVON
(A 2 CUADRAS DE AV. SAN JUAN - A 2 DE AV. JUAN DE GARAY Y METROBUS - A 3 DE AV. JUJUY Y SUBTE LINEA H - A 5 DE AV. ENTRE RIOS)
SAN CRISTOBAL
FINANCIACIÓN PRIVADA EN DÓLARES HASTA 48 MESES.
HASTA EL 30% DEL PRECIO DEL INMUEBLE.
MÍNIMOS REQUISITOS.
TOMAMOS PROPIEDAD EN PARTE DE PAGO.
OPERACIONES SIMULTANEAS: Vendé tu propiedad y comprá al mismo tiempo.
APTO DISCAPACITADOS: No.
NO SE INCLUYEN EN EL PRECIO DE ESTA VENTA: Mobiliarios no empotrados, aires acondicionados, estufas ni artefactos de iluminación.
AVISO LEGAL: Las descripciones arquitectónicas y funcionales, valores de expensas, impuestos y servicios, fotos y medidas de este inmueble son aproximados. Los datos fueron proporcionados por el propietario a cada licenciatario de la marca BRICK Propiedades & Servicios y BRICK (cuyos datos se exhiben al pie de los datos de contacto de cada Local u Oficina). Dichos datos pueden no estar actualizados a la hora de la visualización de este aviso por lo cual pueden arrojar inexactitudes y discordancias con las que surgen de los las facturas, títulos y planos legales del inmueble. El interesado deberá realizar las verificaciones respectivas previamente a la realización de cualquier operación, requiriendo por sí o los profesionales de su confianza (arquitectos, ingenieros, agrimensores, escribanos, abogados, contadores, etc.) las copias necesarias de la documentación que corresponda.
Planos
Ubicación
PICHINCHA al 1400 · SAN CRISTOBAL / C.A.B.A.


























































