ALEM, LEANDRO N., AV. al 500
Edificios en Venta · CENTRO / C.A.B.A.
U$S 870.000.-























18 fotos
848 m² totales
848 m² cubiertos
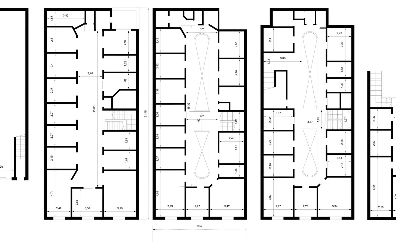
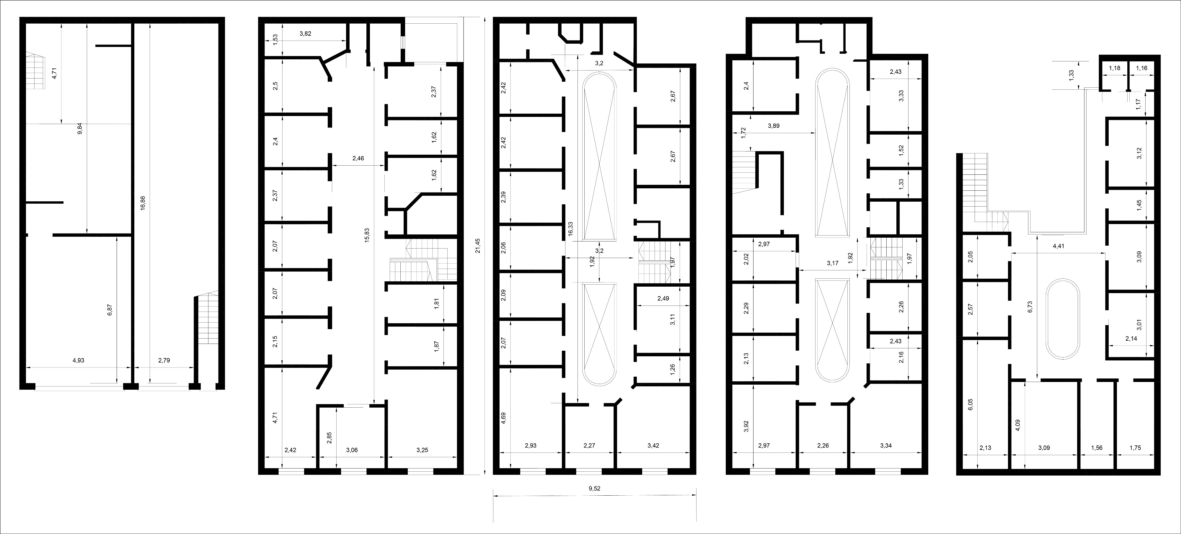
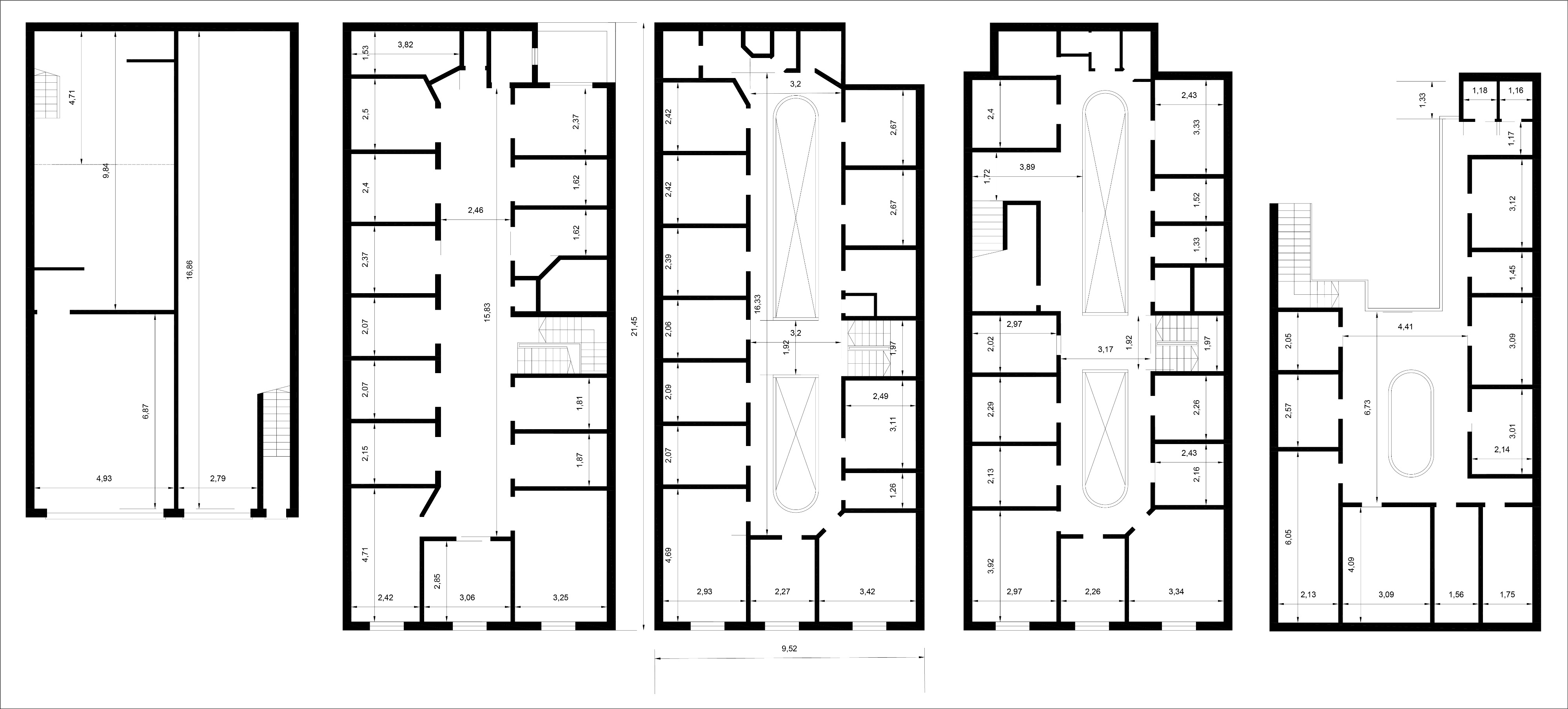
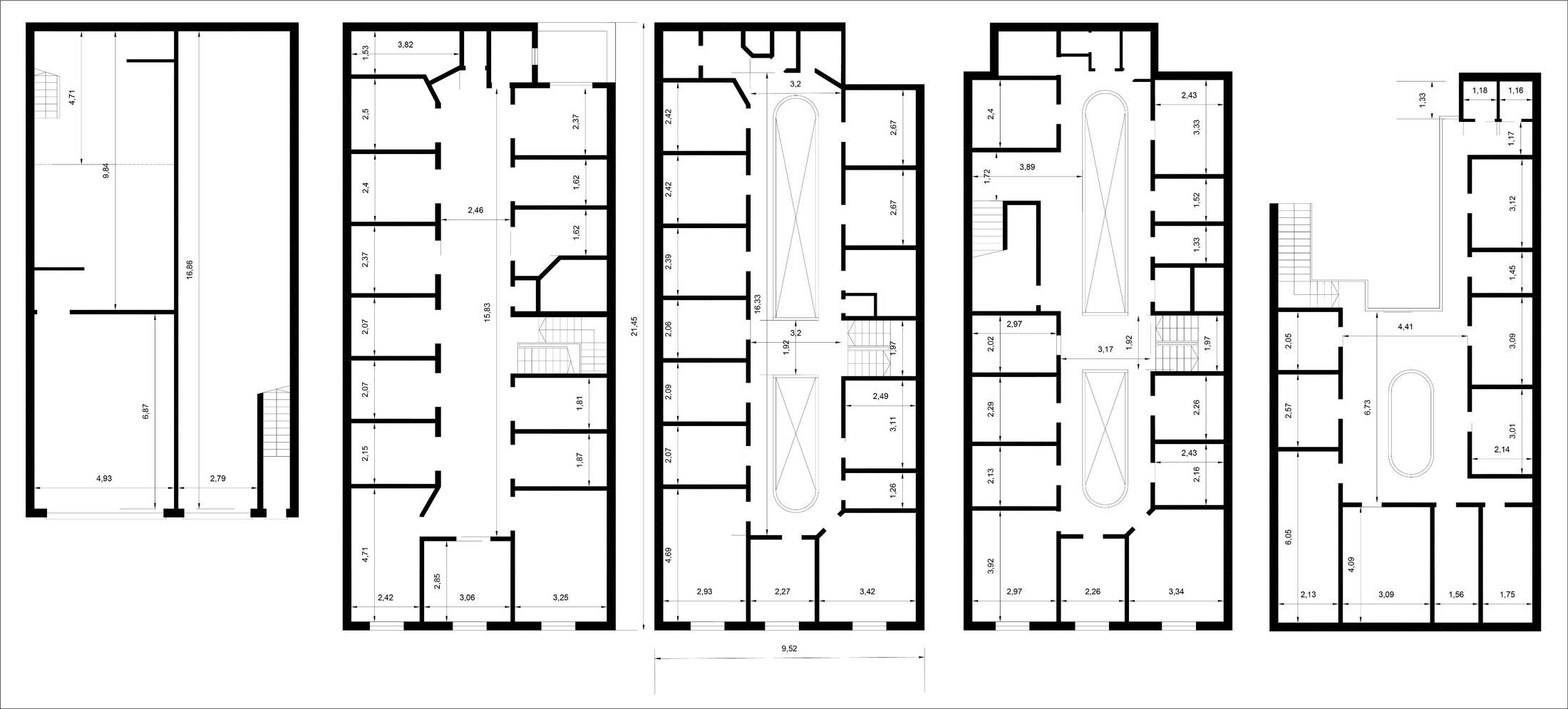
PETIT HOTEL DE ESTILO RESTAURACION FRANCES + LOCAL A LA CALLE. 848 M2 CUBIERTOS TOTALES EN 4 PLANTAS. 48 HABITACIONES. 8 BAÑOS. 2 COCINAS.
ENTRE TUCUMAN Y LAVALLE
(FRENTE A LA PLAZA ROMA - A 2 CUADRAS DE AV. CORDOBA - A 2 DE AV. CORRIENTES Y SUBTE LINEA B - A 2 DEL ESTADIO LUNA PARK - A 3 DE PUERTO MADERO - A 5 DE CATALINAS)
CENTRO
AVISO LEGAL: Las descripciones arquitectónicas y funcionales, valores de expensas, impuestos y servicios, fotos y medidas de este inmueble son aproximados. Los datos fueron proporcionados por el propietario a cada licenciatario de la marca BRICK Propiedades & Servicios y BRICK (cuyos datos se exhiben al pie de los datos de contacto de cada Local u Oficina). Dichos datos pueden no estar actualizados a la hora de la visualización de este aviso por lo cual pueden arrojar inexactitudes y discordancias con las que surgen de los las facturas, títulos y planos legales del inmueble. El interesado deberá realizar las verificaciones respectivas previamente a la realización de cualquier operación, requiriendo por sí o los profesionales de su confianza (arquitectos, ingenieros, agrimensores, escribanos, abogados, contadores, etc.) las copias necesarias de la documentación que corresponda.
Planos
Ubicación
ALEM, LEANDRO N., AV. al 500 · CENTRO / C.A.B.A.
















