RIVERA, PEDRO IGNACIO al 2600 Piso 3° Y 4°
Departamento en Venta · BELGRANO / C.A.B.A.








































No disponible
35 fotos
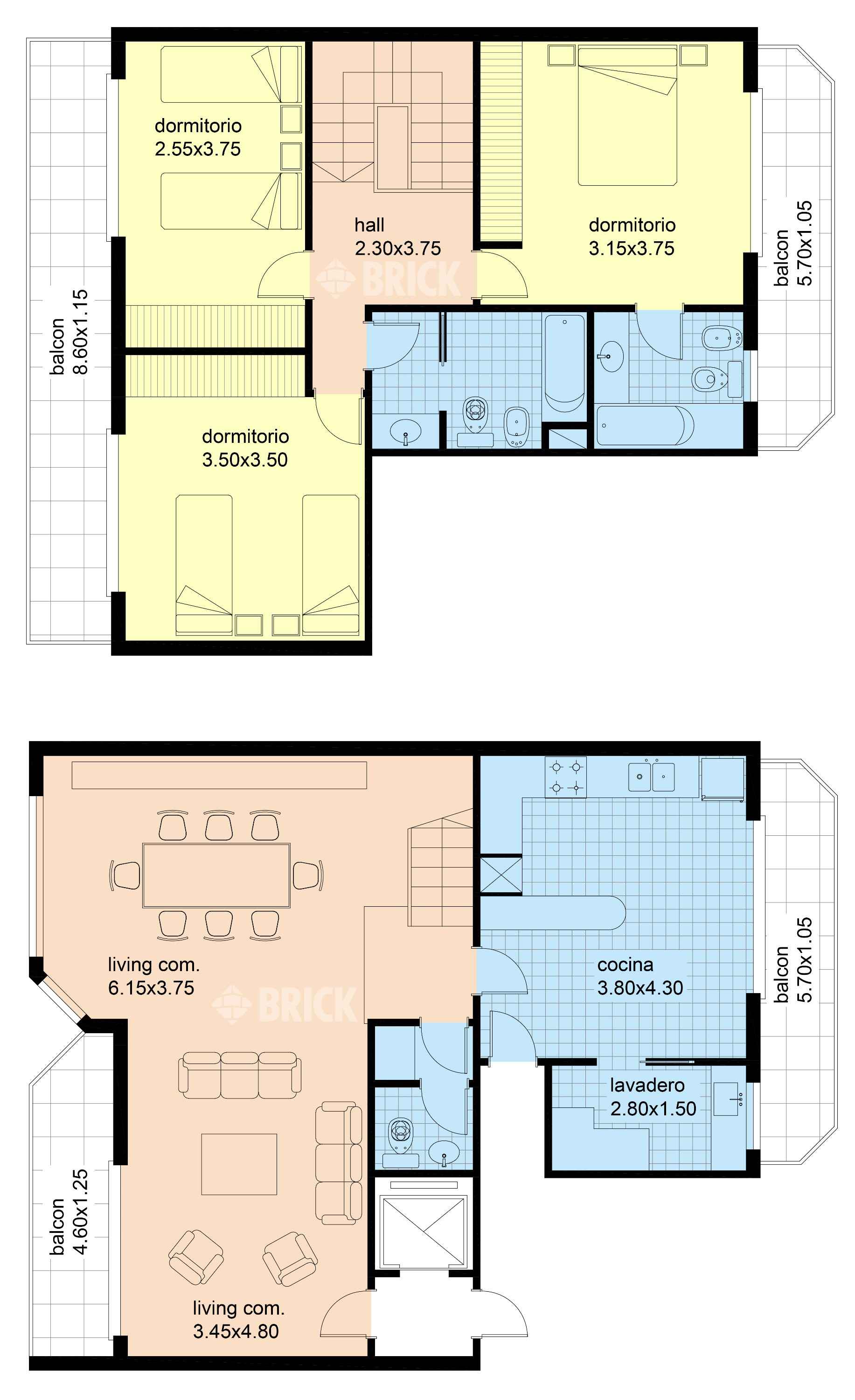
4 ambientes
3 dormitorios
3 baños
155 m² totales
126 m² cubiertos
Esta propiedad ya no está disponible.
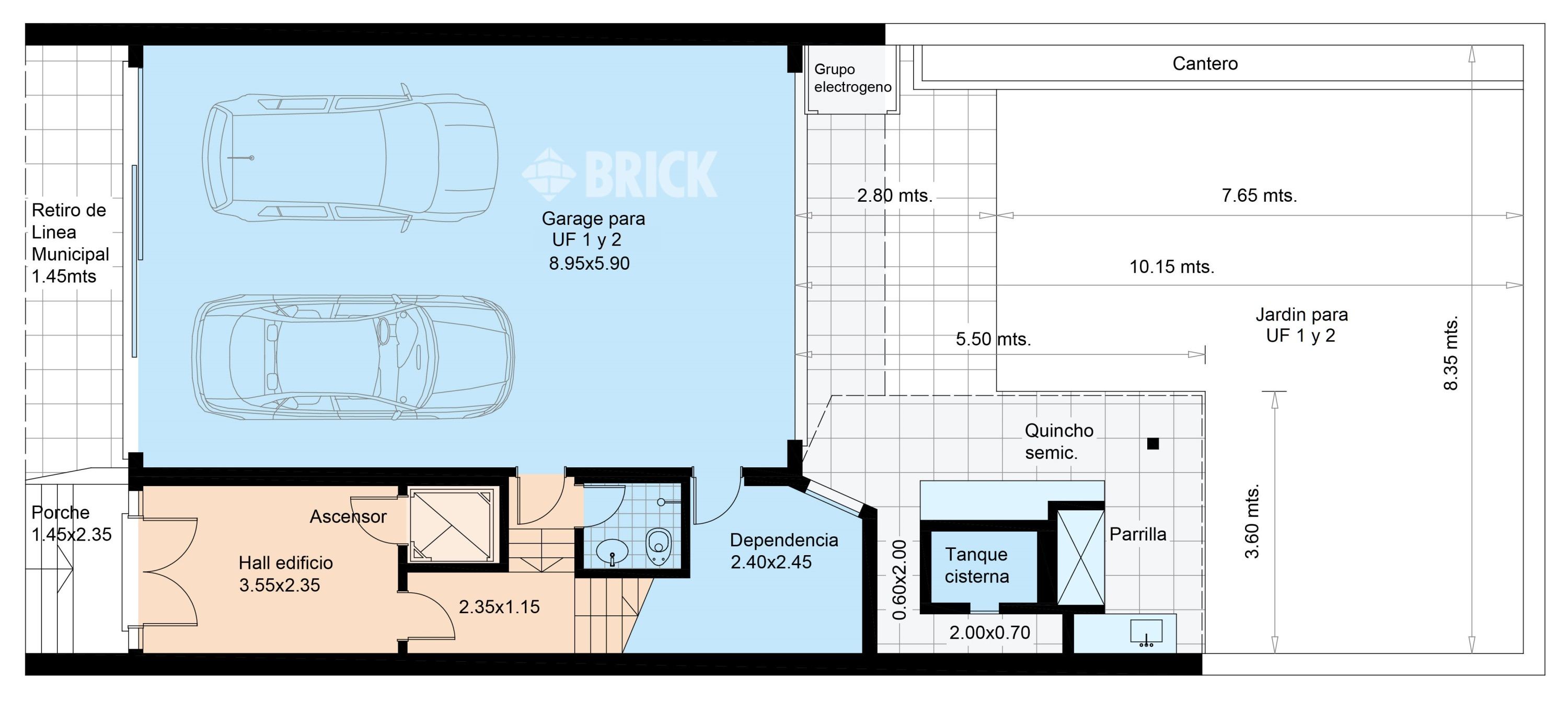
PISO 4 AMBIENTES EN DUPLEX SIN EXPENSAS. FRENTE Y CONTRAFRENTE. 155 M2 TOTALES. IMPECABLE. GARAGE COMPARTIDO CON LA OTRA UNIDAD. 4 BALCONES (1 CORRIDO). VISTA A JARDINES DEL EDIFICIO. TODO SOL. DOBLE ENTRADA. PALIER PRIVADO. LIVING APAISADO. SUITE CON HIDROMASAJE + BAÑO COMPLETO COMPARTIMENTADO + TOILETTE. ESPECTACULAR COCINA COMEDOR CON DESAYUNADOR. 3 PLACARDS. SERVICIOS CENTRALES POR CALDERA INDIVIDUAL. LAVADERO INDEPENDIENTE CUBIERTO. PISOS DE MADERA. PUERTAS BLINDADAS. GRUPO ELECTROGENO. EDIFICIO CON JARDIN CON PARRILLA PARA LAS 2 UNIDADES, DEPENDENCIA DE SERVICIO, ASCENSOR.
ENTRE AMENABAR Y MOLDES
(A 3 CUADRAS DE AV. CABILDO - A 4 CUADRAS DE ESTACION CONGRESO DE TUCUMAN DEL SUBTE LINEA D)
BELGRANO
FINANCIACIÓN PRIVADA EN DÓLARES HASTA 48 MESES.
HASTA EL 30% DEL PRECIO DEL INMUEBLE.
MÍNIMOS REQUISITOS.
TOMAMOS PROPIEDAD EN PARTE DE PAGO.
OPERACIONES SIMULTANEAS: Vendé tu propiedad y comprá al mismo tiempo.
APTO DISCAPACITADOS: Sí.
NO SE INCLUYEN EN EL PRECIO DE ESTA VENTA: Mobiliarios no empotrados, aires acondicionados, estufas ni artefactos de iluminación.
AVISO LEGAL: Las descripciones arquitectónicas y funcionales, valores de expensas, impuestos y servicios, fotos y medidas de este inmueble son aproximados. Los datos fueron proporcionados por el propietario a cada licenciatario de la marca BRICK Propiedades & Servicios y BRICK (cuyos datos se exhiben al pie de los datos de contacto de cada Local u Oficina). Dichos datos pueden no estar actualizados a la hora de la visualización de este aviso por lo cual pueden arrojar inexactitudes y discordancias con las que surgen de los las facturas, títulos y planos legales del inmueble. El interesado deberá realizar las verificaciones respectivas previamente a la realización de cualquier operación, requiriendo por sí o los profesionales de su confianza (arquitectos, ingenieros, agrimensores, escribanos, abogados, contadores, etc.) las copias necesarias de la documentación que corresponda.
Planos
Ubicación
RIVERA, PEDRO IGNACIO al 2600 Piso 3° Y 4° · BELGRANO / C.A.B.A.

































