CATAMARCA al 600 Piso PB
PH en Venta · SAN CRISTOBAL / C.A.B.A.
U$S 105.000.-




























23 fotos
4 ambientes
3 dormitorios
1 baños
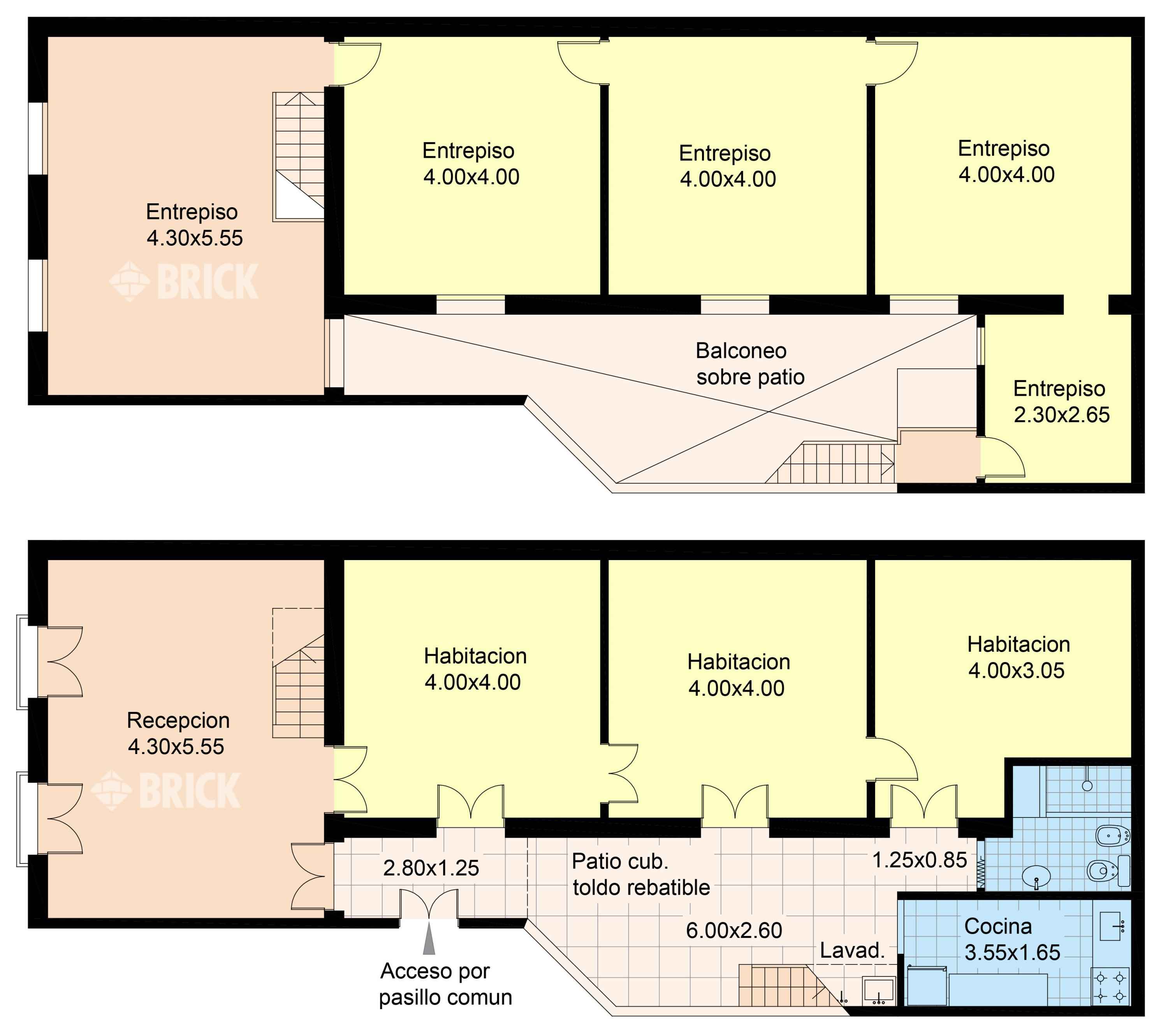
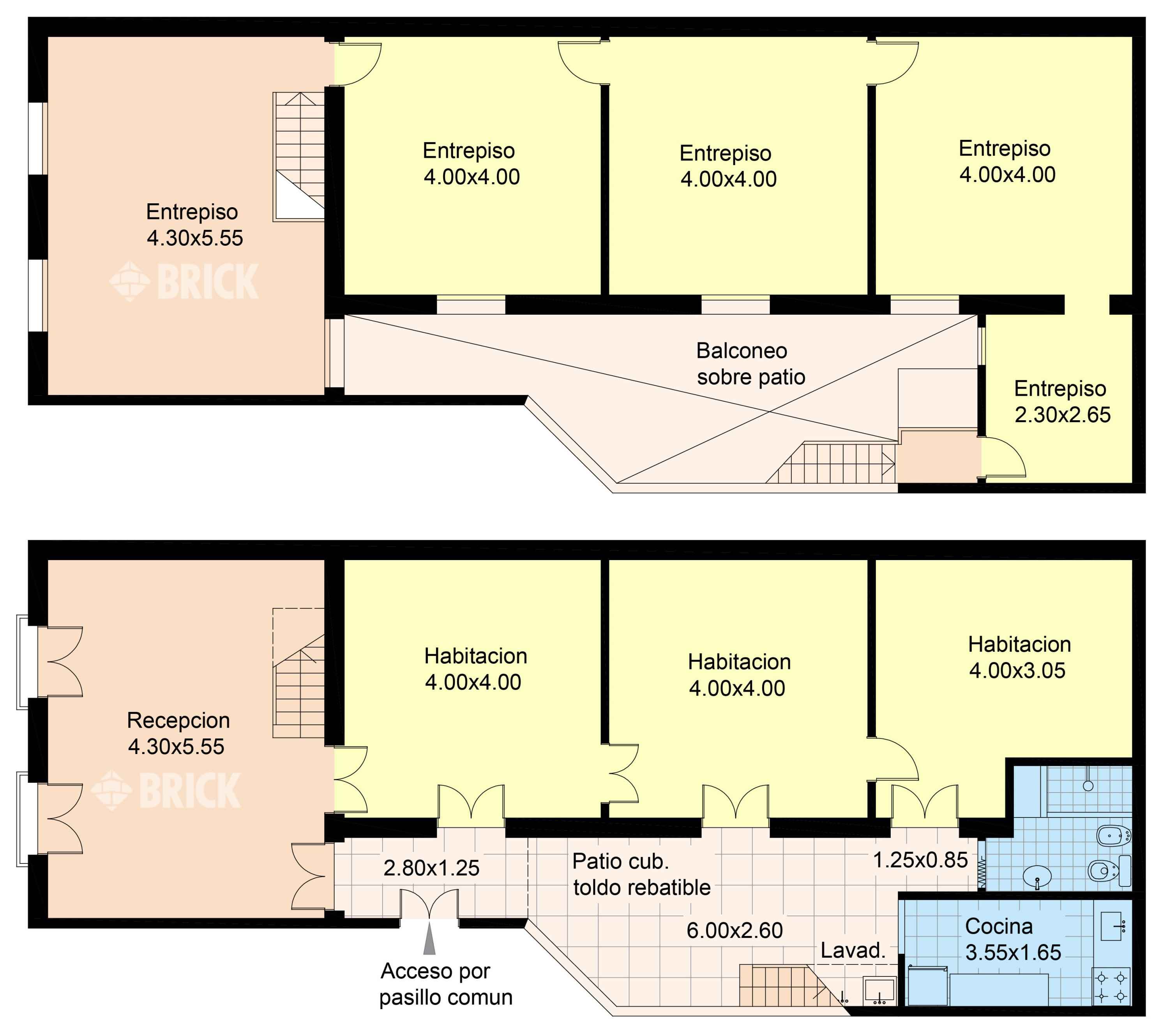
114 m² totales
PH 4 AMBIENTES + ENTREPISOS, SIN EXPENSAS Y AL FRENTE. 114 M2. IMPECABLE. PATIO LATERAL CUBIERTO. TODO SOL. BAÑO Y COCINA COMPLETOS RECICLADOS. SERVICIOS INDIVIDUALES. LAVADERO INDEPENDIENTE CUBIERTO. PISOS DE PINOTEA. CARPINTERIAS DE CEDRO. PROTECCION EN TODAS LAS VENTANAS. EXCELENTE FACHADA, DE ESTILO, 3 UNIDADES EN TOTAL.
ABL: $ 7.912.-
AYSA: $ 25.000.-
ENTRE AV. INDEPENDENCIA Y MEXICO
(A 1 CUADRA DE AV. JUJUY Y SUBTE LINEA H - A 2 DE AV. BELGRANO)
SAN CRISTOBAL
FINANCIACIÓN PRIVADA EN DÓLARES HASTA 48 MESES.
HASTA EL 30% DEL PRECIO DEL INMUEBLE.
MÍNIMOS REQUISITOS.
TOMAMOS PROPIEDAD EN PARTE DE PAGO.
OPERACIONES SIMULTANEAS: Vendé tu propiedad y comprá al mismo tiempo.
APTO DISCAPACITADOS: Sí.
NO SE INCLUYEN EN EL PRECIO DE ESTA VENTA: Mobiliarios no empotrados, aires acondicionados, estufas ni artefactos de iluminación.
AVISO LEGAL: Las descripciones arquitectónicas y funcionales, valores de expensas, impuestos y servicios, fotos y medidas de este inmueble son aproximados. Los datos fueron proporcionados por el propietario a cada licenciatario de la marca BRICK Propiedades & Servicios y BRICK (cuyos datos se exhiben al pie de los datos de contacto de cada Local u Oficina). Dichos datos pueden no estar actualizados a la hora de la visualización de este aviso por lo cual pueden arrojar inexactitudes y discordancias con las que surgen de los las facturas, títulos y planos legales del inmueble. El interesado deberá realizar las verificaciones respectivas previamente a la realización de cualquier operación, requiriendo por sí o los profesionales de su confianza (arquitectos, ingenieros, agrimensores, escribanos, abogados, contadores, etc.) las copias necesarias de la documentación que corresponda.
Planos
Ubicación
CATAMARCA al 600 Piso PB · SAN CRISTOBAL / C.A.B.A.





















