15 DE NOVIEMBRE DE 1889 al 1300
Casa en Venta · BARRACAS / C.A.B.A.
U$S 115.000.-




































31 fotos
4 ambientes
3 dormitorios
1 baños
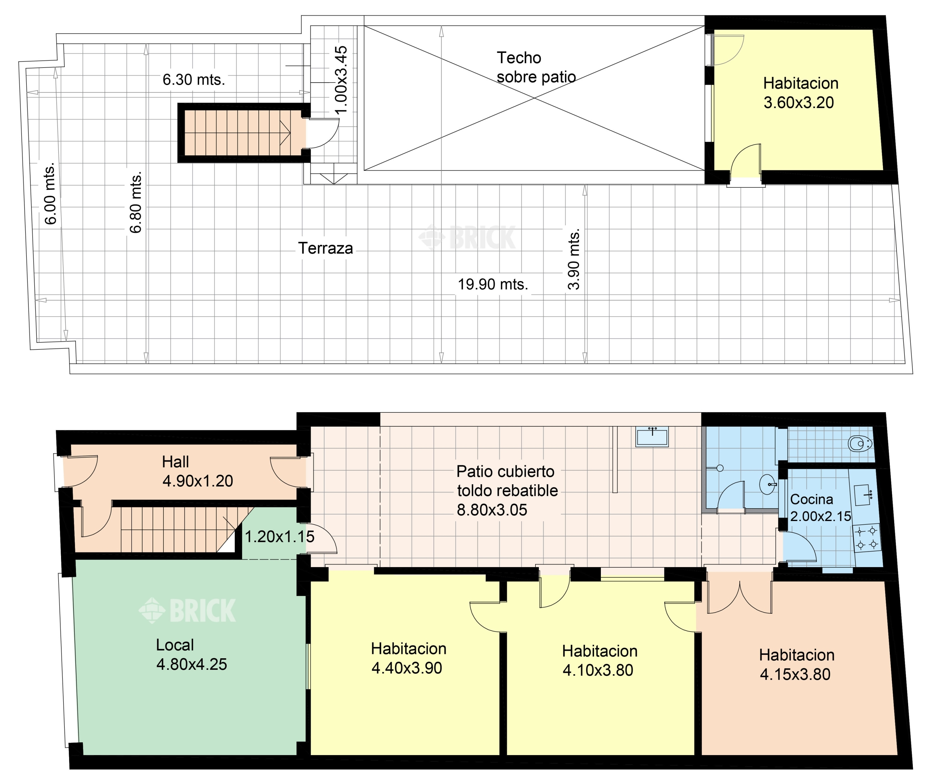
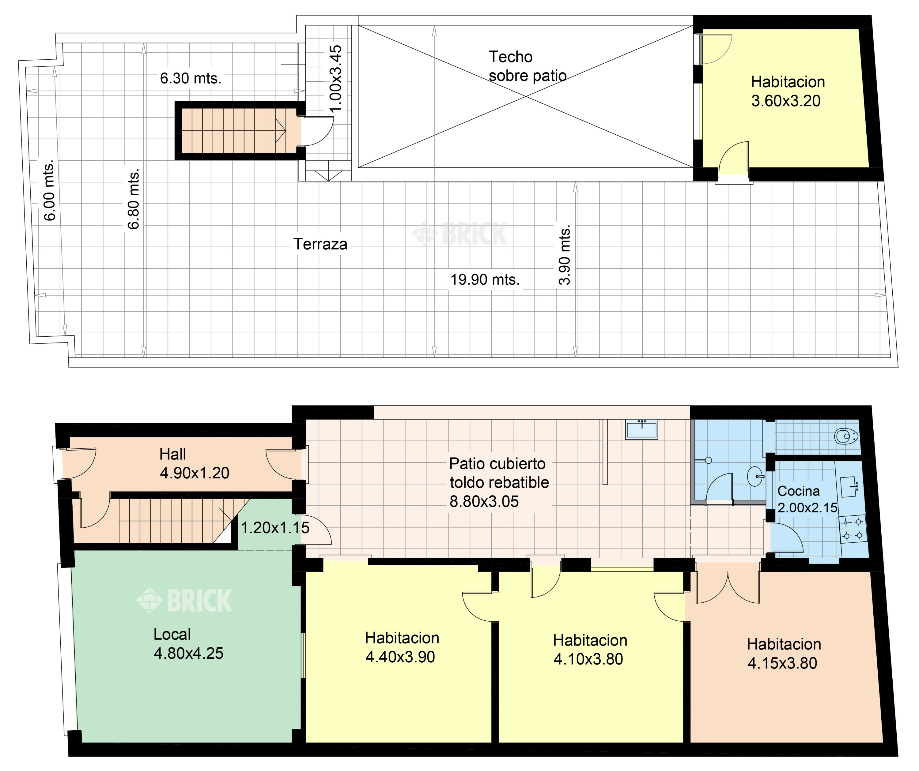
136 m² totales
145 m² cubiertos
CASA 4 AMBIENTES A REFACCIONAR + LOCAL A LA CALLE EN LOTE DE 7.34X18.39 METROS. 136 M2 DE SUPERFICIE. 145 M2 CUBIERTOS. TODO TERRAZA + GRAN PATIO LATERAL. BAÑO CON DUCHA. COCINA COMPLETA. PISOS DE PINOTEA.
UNIDAD DE SUSTENTABILIDAD DE ALTURA MEDIA (17.20 METROS + RETIRO). A CONSTRUIR 740 M2 NETOS VENDIBLES
ABL: $ 16.000.-
AYSA: $ 14.000.-
ENTRE SANTIAGO DEL ESTERO Y SAN JOSE
(A 1 CUADRA DE AV. CASEROS Y PARQUE ESPAÑA - A 5 DE AV. ENTRE RIOS)
BARRACAS
FINANCIACIÓN PRIVADA EN DÓLARES HASTA 48 MESES.
HASTA EL 30% DEL PRECIO DEL INMUEBLE.
MÍNIMOS REQUISITOS.
TOMAMOS PROPIEDAD EN PARTE DE PAGO.
OPERACIONES SIMULTANEAS: Vendé tu propiedad y comprá al mismo tiempo.
APTO DISCAPACITADOS: Sí.
NO SE INCLUYEN EN EL PRECIO DE ESTA VENTA: Mobiliarios no empotrados, aires acondicionados, estufas ni artefactos de iluminación.
AVISO LEGAL: Las descripciones arquitectónicas y funcionales, valores de expensas, impuestos y servicios, fotos y medidas de este inmueble son aproximados. Los datos fueron proporcionados por el propietario a cada licenciatario de la marca BRICK Propiedades & Servicios y BRICK (cuyos datos se exhiben al pie de los datos de contacto de cada Local u Oficina). Dichos datos pueden no estar actualizados a la hora de la visualización de este aviso por lo cual pueden arrojar inexactitudes y discordancias con las que surgen de los las facturas, títulos y planos legales del inmueble. El interesado deberá realizar las verificaciones respectivas previamente a la realización de cualquier operación, requiriendo por sí o los profesionales de su confianza (arquitectos, ingenieros, agrimensores, escribanos, abogados, contadores, etc.) las copias necesarias de la documentación que corresponda.
Planos
Ubicación
15 DE NOVIEMBRE DE 1889 al 1300 · BARRACAS / C.A.B.A.





























