SANTA MARIA DE TIGRE
Casa en Alquiler · RINCON DE MILBERG / TIGRE
















.jpg?v=20190917194135_1)






















34 fotos
7 ambientes
4 dormitorios
5 baños
419 m² cubiertos
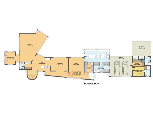
Hermosa casa en 2 plantas, ubicada en un lote interno de 950 m2. Cubiertos 419 m2.
PB: Cochera cubierta para 2 autos. Porch, recepción con toilette y placard. Amplio estar con doble altura. Bar y comedor.Lindisima cocina con despensa e isla. Comedor diario.Lavadero independiente.
Dependencia de servicio.Cuarto deposito.Quincho con parrilla y baño de piscina. Jardín con pileta revestida íntegramente con venecitas y solarium.Riego por aspersión.
PA: Master suite con baño con hidromasaje y box de ducha.Vestidor en un segundo nivel.2 dormitorios en semisuite con baño compartimentado.Escritorio o 4to. dormitorio. Playroom que balconea a la planta baja.
Lindísimos detalles de terminación. Calefacción central, Aires Acondicionados Split en todos los ambientes. Todo luz y sol , aberturas de PVC con DVH.
Opción VENTA o ALQUILER!!!.
Brick Propiedades & Servicios (Alex Katz 6135 CMCPSI)
Nota: Toda la informacion y medidas provistas son aproximadas y deberan ratificarse con la documentacion pertinente y no compromete contractualmente a nuestra empresa. Los gastos expresados refieren a la ultima informacion recabada y deberan cofirmarse. Fotografias no vinculantes ni contractuales.
Planos
Ubicación
SANTA MARIA DE TIGRE · RINCON DE MILBERG / TIGRE










.jpg?v=20190917194135_1)





















