Favoritas
Venta
SAN JOSE al 300 Piso 4
Departamento en Venta MONSERRAT / C.A.B.A.
12 AMBIENTES
Venta
SAN JOSE al 300 Piso 4
Departamento en Venta MONSERRAT / C.A.B.A.
12 AMBIENTES
U$S 149.000.-
+ $ 120.000 Expensas
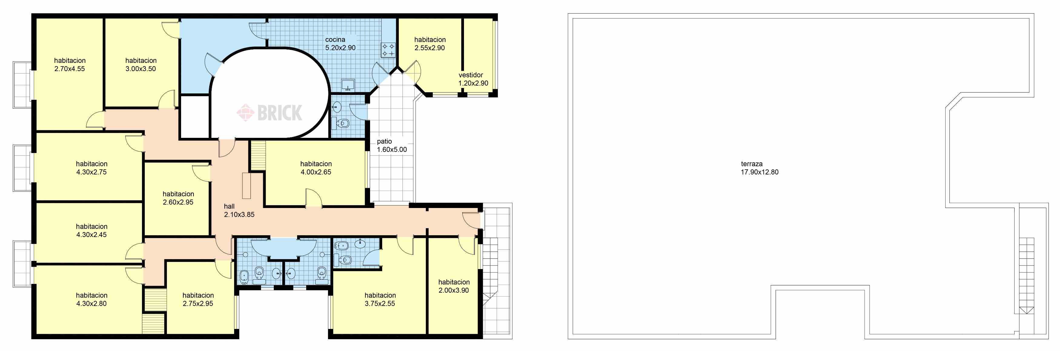
CARACTERÍSTICAS GENERALES
Cod. Propiedad
1026129
Ambientes
12
Dormitorios
11
Baños
4
Sup. Cubierta
189 m2
Sup. Total
383 m2
AMBIENTES Y EXPANSIONES
Living-Comedor
Dormitorio
Terraza
Balcón
DESCRIPCIÓN
(IDEAL HOSTEL PARA ESTUDIANTES Y TURISMO). 11 HABITACIONES (1 EN SUITE) + 3 BAÑOS. FRENTE. 189 M2 CUBIERTOS + TERRAZA. 383 M2 TOTALES. ESPECTACULAR TERRAZA EN TODA LA SUPERFICIE. 3 BALCONES. DOBLE ENTRADA. COCINA COMEDOR. GRAN DESPENSA. SERVICIOS INDIVIDUALES. PISOS DE PINOTEA Y ROBLE. CARPINTERIAS DE CEDRO. ESCALERA DE MARMOL. EDIFICIO SEÑORIAL HISTORICO, ASCENSOR TIPO JAULA.
EXPENSAS: $ 120.000.-
AYSA: $ 17.000.-
ENTRE AV. BELGRANO Y MORENO
MONSERRAT
APTO DISCAPACITADOS: Si.
NO SE INCLUYEN EN EL PRECIO DE ESTA VENTA: Mobiliarios no empotrados, aires acondicionados, estufas ni artefactos de iluminación.
AVISO LEGAL: Las descripciones arquitectónicas y funcionales, valores de expensas, impuestos y servicios, fotos y medidas de este inmueble son aproximados. Los datos fueron proporcionados por el propietario a cada licenciatario de la marca BRICK Propiedades & Servicios y BRICK (cuyos datos se exhiben al pie de los datos de contacto de cada Local u Oficina). Dichos datos pueden no estar actualizados a la hora de la visualización de este aviso por lo cual pueden arrojar inexactitudes y discordancias con las que surgen de los las facturas, títulos y planos legales del inmueble. El interesado deberá realizar las verificaciones respectivas previamente a la realización de cualquier operación, requiriendo por sí o los profesionales de su confianza (arquitectos, ingenieros, agrimensores, escribanos, abogados, contadores, etc.) las copias necesarias de la documentación que corresponda.
UBICACIÓN
SAN JOSE al 300 Piso 4
MONSERRAT / C.A.B.A.
VISTA 3D
VEA EL INMUEBLE EN GOOGLE STREET VIEW
PUNTOS DE INTERÉS
VEA ESCUELAS, FARMACIAS, SUPERMERCADOS Y OTROS PUNTOS DE INTERÉS
Seleccionar
Seleccionar
Bancos
Comisarias
Entretenimientos
Escuelas
Estacionamientos
Estaciones de Servico
Farmacias
Kioscos
Lavaderos
Lavaderos de Autos
Peluquerias
Restaurantes
Supermercados
Templos/Iglesias
Terminales de Omnibus
Transportes
Universidades
PLANOS

Contactanos
¡TASAMOS MEJOR!
Tasaciones profesionales, para operaciones reales e inmediatas
LÍNEA DIRECTA4826 1377
WHATSAPP15 6547 6546